無錫融創長江映
上疊案例賞析
設計/無錫紫蘋果別墅裝修
根據客戶需求設計老師是做了兩稿方案
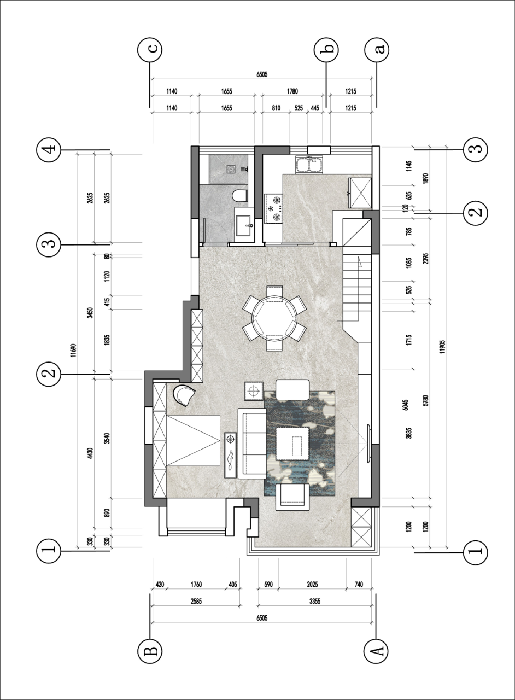
一樓陽臺打通,南面都有做這個多功能區,樓梯改在東面,直跑樓梯節省了大量的空間。挑空部分進行現澆,擴大了使用面積。廚房擴大,解決了廚房體量小的問題。

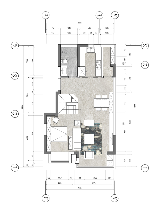
一樓樓梯位置不變,挑空區域做了現澆,把衛生間設置在挑空區域。增加廚房和衛生間的體量。大橫廳和陽臺打通,面積進一步擴大,分成了客廳和多功能區域。
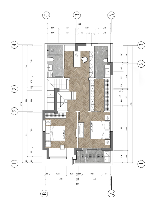
二樓方案①主臥和次臥做了兩個小套房,衛生間做到了北面。連接開放式書房。
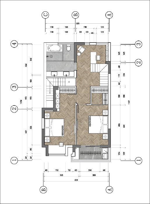
方案②主臥做了一個有內衛的大套房,北面做了一個公衛和一個開放式書房
折騰是平平淡淡日子里幸福的生活
——-----


原創設計,盜圖必究
【預告】:裝修干貨,敬請期待



喜歡記得
和收藏
要是有想看的相關案例可下方給我留言。
最新文章
紫蘋果聲明:
Copyright 2020 www.sx98.cn All Rights Reserved. 蘇ICP備18037275號-2
蘇公網安備32021302002167 上海紫蘋果裝飾有限公司無錫第一分公司版權所有
紫蘋果國際設計-品質贏得口碑