【設計信息】?
?項目地點| Project location無錫宸風云廬
設計風格| Design Style:待定

面 積 | Square Meter :250㎡
設 計 師|無錫紫蘋果別墅裝修
----------------------------------------------------
1?一層通過敲砌墻調整了空間的完整性。入戶做了
一個比較大的入戶衣帽間,中廚設計了開放式和閉式兩種方案,搭配西廚島臺使用,增加了餐廚空間。在這稿方案中,對一樓公衛進行了保留,朝南設置一
個房間,以滿足居住需要。
2?二層個保留了三個房間。主臥室一個大套房,滿足主人的洗浴、衣帽間等需求。北面兒童房較小采用了榻榻米的方式,同時增加了儲物空間。
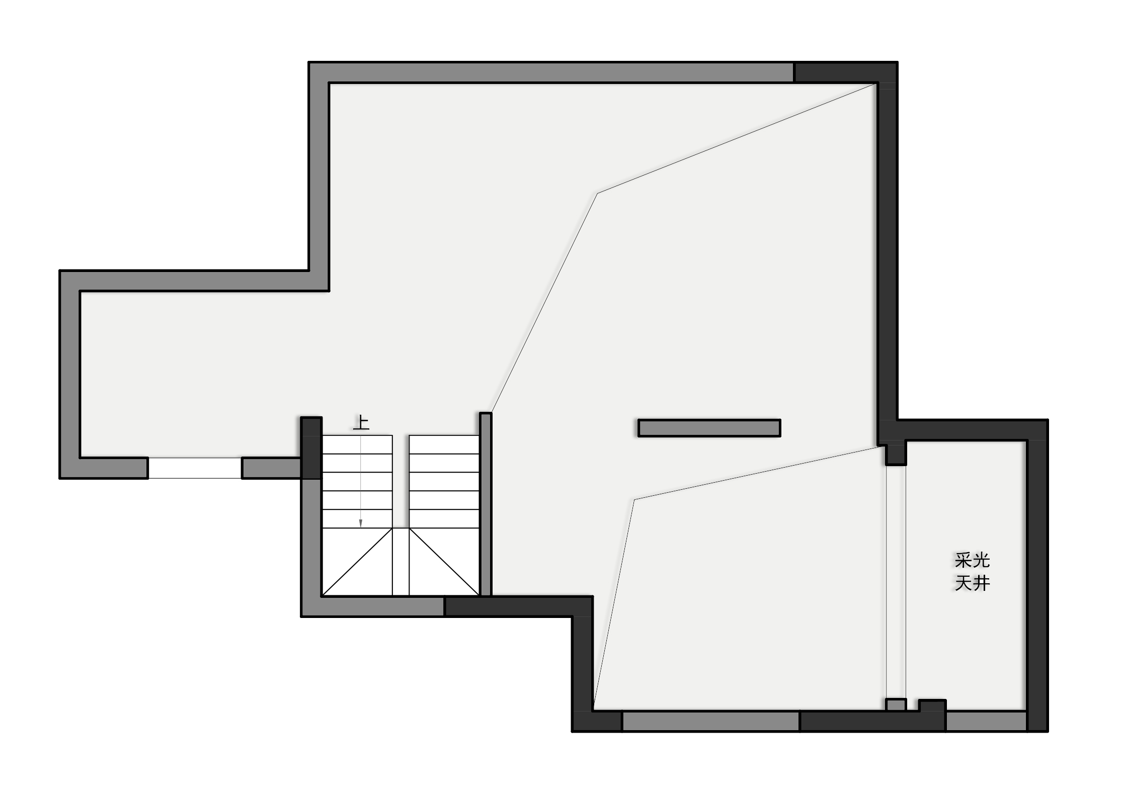
3?負一層保留了大挑空,結合少量現澆,把空間變得更方正,利用率更高。將北面采光井也納入室內規劃范圍,難處理的Z字形承重柱用柜子做裝飾,滿足了儲物需求,空間也更加美觀。這個空間主要作為多功能的書房和儲物間來使用,滿足客戶工作、
閱讀、儲物等需求。
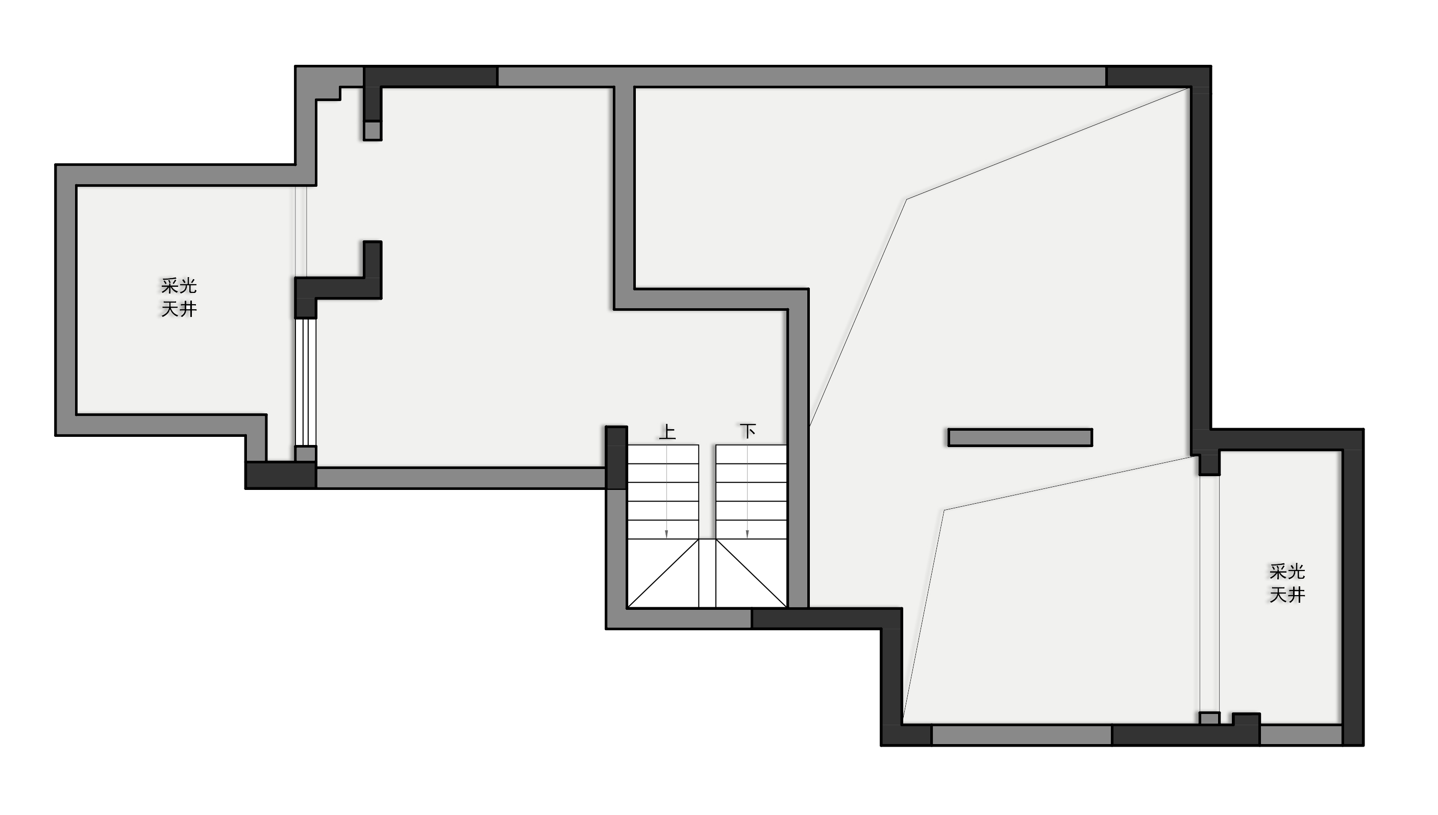
4?負二層在入戶處做了進門鞋帽柜,方便入戶收納。功能上負二層空間作為一個休閑會客區域來使用,巧妙利用原來的墻體微調之后做為電視墻,樓梯下方設計微景觀與茶室結合,讓空間更加美觀。在北面規劃洗手間和茶水臺,很大限度滿足了會客的需求。
宸風云廬戶型方案持續更新中,記得查看
最新文章
紫蘋果聲明:
Copyright 2020 www.sx98.cn All Rights Reserved. 蘇ICP備18037275號-2
蘇公網安備32021302002167 上海紫蘋果裝飾有限公司無錫第一分公司版權所有
紫蘋果國際設計-品質贏得口碑