項目名稱 | 鴻墅·公園悅府
方案設計 | 無錫紫蘋果別墅設計
面 積 | 150㎡
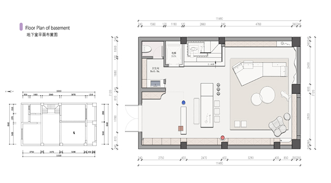
-1F
The Basement
▽平面設計

隨著地下室防水防潮、通風、采光等措施的完善以及智能家居系統的普及,別墅的地下室也就不止儲藏室這一個選擇了。
從車庫入戶比一層入戶頻率更高更方便。
設計師將鴻墅負二層規劃出衛生間,品茗區,影音區。
鴻墅地下室具有隱秘性,外來光線干擾小,同時也有很好的隔音效果,浪漫幽靜的氛圍,是打造家庭私人影院的理想空間。
開放式的品茗區,適合家庭間彼此的溝通與交流,也可以與三五好友談談心,聊聊天,一起坐下來分享趣事。
▽設計意向圖



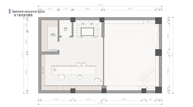
夾層

設計師將鴻墅原先負二層的挑高,現澆了一半的面積變成夾層,但保留了原先負二層影音區的一個挑空部分。
利用現澆的隔層,空間規劃了一個開放式“書房”
疫情之下,居家辦公成為了常態,安靜的空間更有助于居者思想與創造力集中,在沉浸與放松之中,一家人可以在這里讀書、學習和工作。
▽設計意向圖




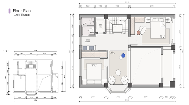
1F
The First Floor

鴻墅一層開放式的廚房、餐廳、客廳相連。
廚房使用了隱藏門,可以將門隱藏在墻內,增加空間的通透感。超大圓桌的餐廳,非常適合家人,朋友聚餐,大氣又實用。
L型的沙發,前方空缺出來的一塊區域,可以看著孩子們在前面玩耍,增加了交流感和家人陪伴帶來的親密感。
▽設計意向圖



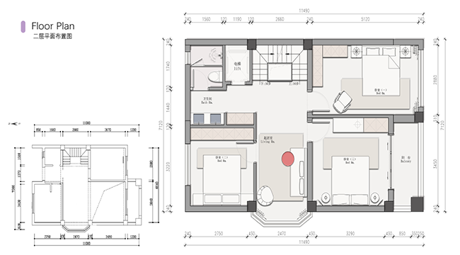
2F
The Second Floor
▽平面設計方案一

二層為主要的居住空間,兩間單獨的房間,南邊臥室進行擴建,增加了面積,讓空間變得更寬闊。
北邊的臥室,在有限的空間做了合理的收納。
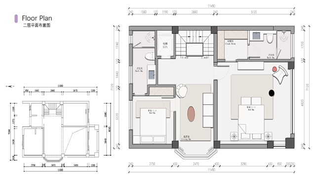
▽平面設計方案二

第二版的方案,將原本的挑高空間,通過現澆隔層,充分利用空間,設計了一間臥室。
兩件臥室均為套房,配備內衛,不僅方便了居者起居生活,也提供了更為寬敞的休息空間。
在兩個房間出來的位置,設計了一個起居室,可以看看書籍,看看電影的小天地。
▽平面設計方案三

第三版的方案,也是將原本的挑高空間,通過現澆隔層,充分利用空間,設計了三間臥室,保留了原本的露臺空間,可以在露臺上養養花,也可以擺上家具,獨處在自己的空間內。
▽設計意向圖



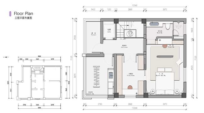
3F
The Third Floor
▽平面設計

鴻墅三樓為業主的獨臥空間,一整個套房的設計,開門就是衣帽間,與臥室還隔著一道推門,里面還配備著衛生間。
擴建露臺,這塊區域,也可做成陽光房,里面放上家具,與朋友一起喝喝茶恰談恰談。
▽設計意向圖




最新文章
紫蘋果聲明:
Copyright 2020 www.sx98.cn All Rights Reserved. 蘇ICP備18037275號-2
蘇公網安備32021302002167 上海紫蘋果裝飾有限公司無錫第一分公司版權所有
紫蘋果國際設計-品質贏得口碑