【設計信息】?
?項目地點| Project location:鴻墅.公元悅府
設計風格| Design Style:現代
面 積 | Square Meter :370㎡













設計之后的每個空間都變得更加合理舒服。
功能介紹
地下室: 修改了樓梯的位置,利用樓梯旁邊的位置做了一個客衛,其他區域分為了會客區休閑影視。
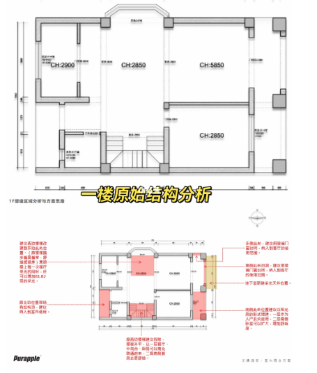
1F:入戶做了一個具有儀式感的門廳,朝南做了一個下沉式客廳,樓梯改成了U型樓梯,外拓擴大了原來的廚房面積分為中西結合的廚房,
2F:現澆原來調控的位置做成一個起居室,南面是一個主臥大套房,北面是父母的套房
3F: 是給小孩準備的兩個大套房
4F: 整個一層都是小孩房,露臺搭建成了陽光房。
原創不易,喜歡本案例的家人們記得??
#裝修設計#設計#設計師#戶型優化#浪漫生活的記錄者#鴻墅#獨立設計師#帝泊灣小區#裝修案例#紫蘋果國際設計無錫第一分公司#別墅設計#空間設計#無錫靠譜的裝修公司#宸風云廬#無錫別墅#新力帝泊灣#硬裝局改




最新文章
紫蘋果聲明:
Copyright 2020 www.sx98.cn All Rights Reserved. 蘇ICP備18037275號-2
蘇公網安備32021302002167 上海紫蘋果裝飾有限公司無錫第一分公司版權所有
紫蘋果國際設計-品質贏得口碑