


_
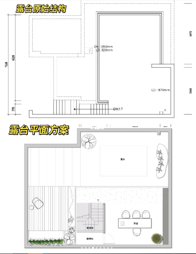
設計需求:三口之家,中央空調,地暖新風,小孩愛好書法國畫,要中式廚房,茶室可放露臺,三只貓咪要安排~
最新文章
紫蘋果聲明:
Copyright 2020 www.sx98.cn All Rights Reserved. 蘇ICP備18037275號-2
蘇公網安備32021302002167 上海紫蘋果裝飾有限公司無錫第一分公司版權所有
紫蘋果國際設計-品質贏得口碑