自從有了這樣的家,再也沒羨慕過別人!熙華府
業主是通過小紅書案例咨詢我們的
女業主很漂亮,是位時尚辣媽,兒子在上小學,老公是企業家,目前想在無錫發展居住,喜歡法式風格。
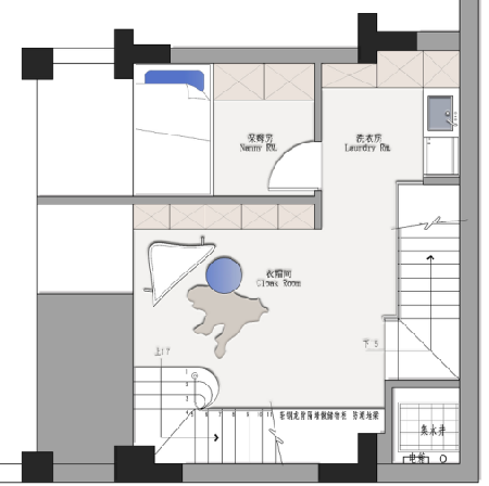
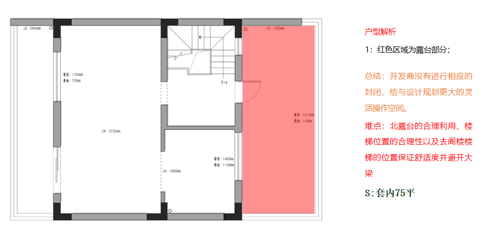
地下室主要是解決采光和樓梯的問題
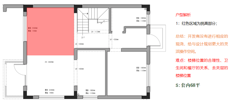
一樓女主人要保留挑高區域,不打算現澆,一樓設置了一個法式旋轉樓梯,
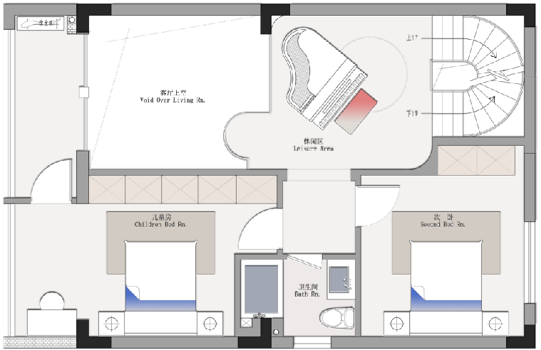
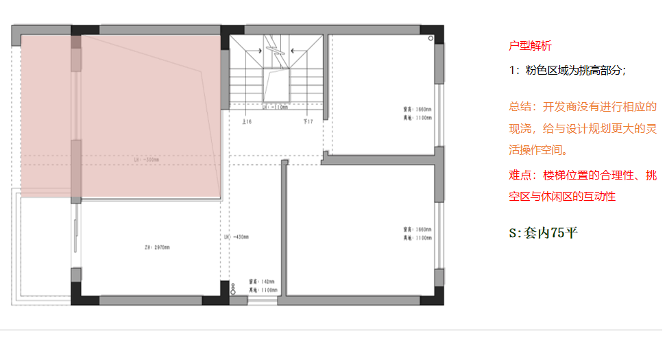
二樓設置了兩個房間,其中一個兒童房,在樓梯口上來的公共區域放置了小孩的三角鋼琴,上樓儀式感十足,旁邊一個挑空區域很浪漫優雅,專為女主人打造。
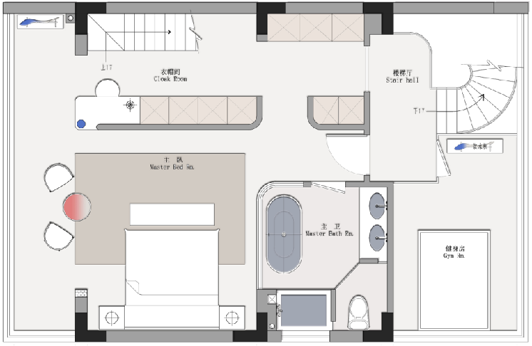
三樓整體做的一個主臥大套房,外面公共區是一個男主人的健身區域,后面的樓梯上去閣樓設置了一個親子娛樂區,整體品質非常高!
#別墅設計#宸風云廬#裝修案例#日常生活里的快樂瞬間#裝修日常#空間設計#裝修公司怎么選#無錫#戶型優化#無錫口碑好的裝修公司#無錫靠譜的裝修公司
#浪







漫生活的記錄者#熙華府
最新文章
紫蘋果聲明:
Copyright 2020 www.sx98.cn All Rights Reserved. 蘇ICP備18037275號-2
蘇公網安備32021302002167 上海紫蘋果裝飾有限公司無錫第一分公司版權所有
紫蘋果國際設計-品質贏得口碑